











Un havre de paix
Logements 3 ½
Conçus pour votre confort et votre sécurité, nos logements 3 ½ allient élégance et fonctionnalité. Le projet vise prioritairement les résidents de Repentigny et des environs ou les personnes ayant de la famille ou un proche aidant demeurant à Repentigny.
pour 1 personne
1365 $ / mois
pour 2 personnes
1596 $ / mois
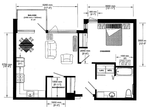
Dimensions du logement
01.
Superficie
646 pc2 (60 m2)
02.
Espace de vie
18’-8’’ x 17’-3’’ (5.7m x 5.25 m)
03.
Rangement
5’-11’’ x 5’-3’’ (1.8m x 1.6 m)
04.
Salle de bain
8'6" x 9'6" (2.6m X 2.9m)
05.
Chambre
12’-11’’ x 12’-5’’ (3.95m x 3.8m)
06.
Balcon
8' x 6'' (2.49m x 1.9m)
Vos avantages
Caractéristique du logement
Balcon privé
Balcon de 8' x 6'
Espace de rangement
Espace pour laveuse et sécheuse
Entrée laveuse/sécheuse située dans la salle de bain de chaque logement
Télévision Entrée pour le câble
Sécurité renforcée
Doté de détecteurs de fumée et de chaleur pour votre tranquillité d'esprit
Salle de bain sécurisée
Accessible avec barres d'appui, équipée de revêtements de sol antidérapants en vinyle et en céramique.
Accessibles pour les fauteuils roulants.
Divertissement intégré
Prises pour téléviseurs disponibles dans le salon et chaque chambre.
Système de ventilation mécanique avec contrôle individuel
Air climatisé inclus
Air climatisé mural installé dans chaque logement

