Un havre de paix

Logements 4 ½

Conçus pour votre confort et votre sécurité, nos logements 4 ½ allient élégance et fonctionnalité. Le projet vise prioritairement les résidents de Repentigny et des environs ou les personnes ayant de la famille ou un proche aidant demeurant à Repentigny.

pour 1 personne

1715$ / mois

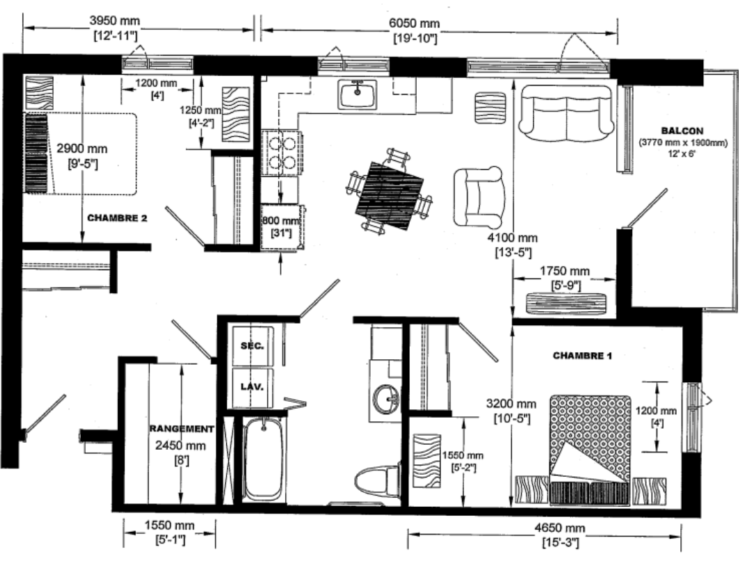
Dimensions du logement

01.
Superficie
818 pc2 (76 m2)
02.
Espace de vie
19'10" x 13'5" (6m x 4.1m)
03.
Rangement
5'1" x 8' (1.5m x 2.4m)
04.
Salle de bain
8'6" x 9'6" (2.6m X 2.9m)
05.
Chambre
15'3" x 10' 5" (4.65m x 3.2m)
06.
Chambre 2
12'11"x 9' 5" (3.95m x 2.9m)
07.
Balcon
12'x 6' (3.77m x 1.99m)

Vos avantages

Caractéristique du logement

c
Balcon privé

Balcon de 8' x 6'

d
Espace de rangement
Espace pour laveuse et sécheuse

Entrée laveuse/sécheuse située dans la salle de bain de chaque logement

Télévision Entrée pour le câble
a
Sécurité renforcée

Doté de détecteurs de fumée et de chaleur pour votre tranquillité d'esprit

Salle de bain sécurisée

Accessible avec barres d'appui, équipée de revêtements de sol antidérapants en vinyle et en céramique.

Accessibles pour les fauteuils roulants.
Divertissement intégré

Prises pour téléviseurs disponibles dans le salon et chaque chambre.

w
Système de ventilation mécanique avec contrôle individuel
Air climatisé inclus

Air climatisé mural installé dans chaque logement

Carte - Au cœur du quartier

Train de l'Est et autres transports en commun.

CLSC Meilleur et Polyclinique.

Professionnels, commerces et restaurants.

Piste cyclable.